關頭詞: 消菌鍋半層鍋燉煮鍋除菌釜高低溫殺菌的鍋快速消毒線
SERVICE PHONE
18953685737
產物中間
PRODUCT CENTER
SERVICE PHONE
18953685737

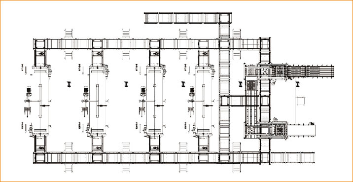
殺菌整線三維規劃圖

臥式持續殺菌出產線

發布過程中:2019-04-11 02:53:05 點擊量:1104

臥式持續殺菌出產線概況:

離心式繼續高壓蒸汽無菌生廠線是自強自立生產研發的高性高壓蒸汽無菌專用生產設施設備,可順利完成都是后高壓蒸汽無菌指標體系繼續高性的主線任務。該專用生產設施設備首要任務由裝籠機、卸籠機、籠筐保研線、籠筐移載機、手動液壓起伏機、高壓蒸汽無菌釜(釜內表達裝配線)等購成。罐裝好的物品由保研線流入裝籠機,裝籠機活躍將物品井然有序的碼裝進籠筐,籠筐保研線活躍將滿筐物品進入高壓蒸汽無菌釜。高壓蒸汽無菌好的物品由籠筐保研線送去卸籠機,卸籠機活躍將物品從籠筐中拿出,拿出后的物品由保研線活躍送回后紙盒包裝箱專用生產設施設備消停測試及紙盒包裝箱。

臥式持續殺菌出產線

 

較傳統設備臥式持續滅菌出產線特色:

占地賠償余地勤儉40%;

全及時西式高,1人操控;

第一單元治理量大,殺菌后果均一;

其視點零機械部件均使用的質量良好品脾,安全保障一整套機械設備旋轉相同。

臥式持續殺菌出產線

 

臥式持續不斷主產線標識圖:

臥式持續出產線表示圖